北海道札幌市中央区南四条西8丁目 /2LDK /63.85m2 /4階部分 /向き /
| 賃料(共益費) | 102,000円 (6,000円) |
|---|
| 間取り(面積) | 2LDK ( 63.85 m2) |
|---|
Room Plan
| 間取タイプ | 2LDK | ||
|---|---|---|---|
| 間取詳細 | LDK:14.3畳 洋:7.2畳 洋:6畳 | ||
| 専有面積 | 63.85m2 | ||
| 方 位 | |||
| 所在階 | 4階部分 | ||
| 賃 料 | 102,000円 | ||
| 管理費 | 6,000円 | ||
| 敷 金 | 102,000円 | ||
| 礼 金 | 102,000円 | ||
| 状 態 | 退去予定
入居時期:相談 |
||
| 物件種別 | [住居用] マンション |
|---|---|
| 所在地 | 北海道札幌市中央区南四条西8丁目 |
| 交通 | 札幌市電「資生館小学校前」徒歩5分 札幌市電「西8丁目」徒歩7分 地下南北線「すすきの」徒歩9分 |
| 構造 | 鉄筋コンクリート造 地上5階 |
| 築年 | 2016年02月築 |
| 駐車場 | 敷地内駐車場/空き1台/16,500円 |
○ 保証会社利用必須
○ 給湯器(都市ガス) ○ ガスコンロ ○ システムキッチン
○ 風呂 ○ トイレ(水洗) ○ 洗面台(独立) ○ シャワートイレ ○ 洗髪洗面化粧台 ○ バス・トイレ別 ○ 洗濯機置場(室内)
○ エアコン(冷房のみ) ○ 暖房(都市ガス)
○ トランクルーム ○ シューズボックス
○ ケーブルTV ○ ネット使用料不要
○ オートロック ○ 宅配BOX ○ インターホン(カメラ付き)
○ ガス(都市ガス) ○ 水道(公営) ○ 排水(公共下水) ○ バルコニー/ベランダ
| 物件種別 | [住居用] マンション |
|---|---|
| 物件名 | オクトブランシュ |
| 号室名 | 1308 |
| 所在地 | 北海道札幌市中央区南四条西8丁目4 |
| 交通 | 札幌市電「資生館小学校前」徒歩5分 札幌市電「西8丁目」徒歩7分 地下南北線「すすきの」徒歩9分 |
| 構造 | 鉄筋コンクリート造地上5階 |
| 築年月 | 2016年02月 |
| 駐車場 | 敷地内駐車場/空き1台/16,500円 |
| 町会費 | 200円(月額) |
| 所在階 | 4階部分 |
| 方位 | - -   |
| 間取り | 2LDK LDK:14.3畳 洋:7.2畳 洋:6畳 |
| 専有面積 | 63.85 m2 |
| 状態 | 退去予定 |
| 賃料 | 102,000円 |
| 共益費 | 6,000円 |
| 敷金 | 102,000円 |
| 礼金 | 102,000円 |
| 他諸経費 | 保険:保険要加入 2年契約 23,500円 ~ (あそしあ少額短期保険) ※ 特記されているものだけを表示していますので、詳しくはお問い合わせの際にご確認ください。 |
| その他 | 普通借家2年間 普通借家 |
| オススメ | |
| 設備・条件 | ○ 保証会社利用必須 ○ 給湯器(都市ガス) ○ ガスコンロ ○ システムキッチン ○ 風呂 ○ トイレ(水洗) ○ 洗面台(独立) ○ シャワートイレ ○ 洗髪洗面化粧台 ○ バス・トイレ別 ○ 洗濯機置場(室内) ○ エアコン(冷房のみ) ○ 暖房(都市ガス) ○ トランクルーム ○ シューズボックス ○ ケーブルTV ○ ネット使用料不要 ○ オートロック ○ 宅配BOX ○ インターホン(カメラ付き) ○ ガス(都市ガス) ○ 水道(公営) ○ 排水(公共下水) ○ バルコニー/ベランダ |
| 情報更新日 | 2026-01-30 19:42:38 |
| お問合せ |

| 間取り | / 2LDK LDK:14.3畳 洋:7.2畳 洋:6畳 | ||
|---|---|---|---|
| 完成年月 | / 2016年02月 | ||
| 構造 | / 鉄筋コンクリート造地上5階 | ||
| 入居可能日 | / 退去予定 | ||
| 総戸数 | / | ||
| 契約形態 | / | ||
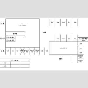
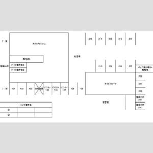
| 駐車場 | / 区画203・210・211・214 契約前の除排雪は行いません | ||
| 売却(敷引) | / | ||
| 割引サービス | / | ||
| 設備 | / ○ 保証会社利用必須 ○ 給湯器(都市ガス) ○ ガスコンロ ○ システムキッチン ○ 風呂 ○ トイレ(水洗) ○ 洗面台(独立) ○ シャワートイレ ○ 洗髪洗面化粧台 ○ バス・トイレ別 ○ 洗濯機置場(室内) ○ エアコン(冷房のみ) ○ 暖房(都市ガス) ○ トランクルーム ○ シューズボックス ○ ケーブルTV ○ ネット使用料不要 ○ オートロック ○ 宅配BOX ○ インターホン(カメラ付き) ○ ガス(都市ガス) ○ 水道(公営) ○ 排水(公共下水) ○ バルコニー/ベランダ | ||
| 備考 |
/
普通借家2年間 普通借家 |
||
オクトブランシュ 1308
物件所在地:北海道札幌市中央区南四条西8丁目
札幌市電「資生館小学校前」徒歩5分
札幌市電「西8丁目」徒歩7分
地下南北線「すすきの」徒歩9分
102,000円
| ■管理費 | 6,000円 |
|---|---|
| ■敷金 | 102,000円 |
| ■礼金 | 102,000円 |
|
<その他費用>
保険:保険要加入 2年契約 23,500円 ~ (あそしあ少額短期保険) |
|